PT Cable Detailing
PT Cable Detailing
Detailing Services
PT Cable Detailing
Rebar People provides comprehensive PT Cable Detailing shop drawings for various projects in the United States market. Our focus is to provide uncompromising quality PT shop drawings, post tension slab designs and post tension cables. Rebar People has been providing a wide range of engineering CADD services, and has vast experience in delivering accurate and affordable PT cable detailing services. We are continually enhancing our skill base, knowledge base and resources base to serve comprehensively and increasingly global clientele. Quality and consistency has always been our focus. Our services is based on a combination of strong engineering and technical skills that result in greater quality PT cable detailing solutions from our teams.

We are expertise in PT Cable Detailing ACI standards, Rebar Sizes and Concrete Rebar Designing projects, allowing us to manage challenging requirements in a given timeframe. We have worked on a broad range of structures, which include:
- Industrial Structures.
- Residential Structures.
- Commercial Structures.
- Simple and Single Residential Units.
- High rise and low rise Apartments.
- Mansions and Villas.
- Commercial Centers and High rises.
- Hospitals, Hotels and Educational Institutions.
- Monuments and Bridges.
- Tanks, Retaining Walls, Reservoirs.
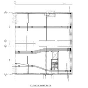
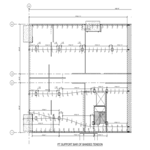
Samples
A systematic project process methodology, which includes a thorough quality checking through the twin procedures of quality control and quality audit, ensures that you need never worry about accuracy, clarity and precision. We also keep in mind your budget needs. Our PT cable detailing services are also cost efficient. You can save up to 70% by outsourcing to us. So, contact us for further details which is always easy – we are always there to help you. You can connect with us by sending a message, by call or simply by email for help, support or advice from any technical questions to business queries!




